
  حرفهای، ساده و ارگونومیک 
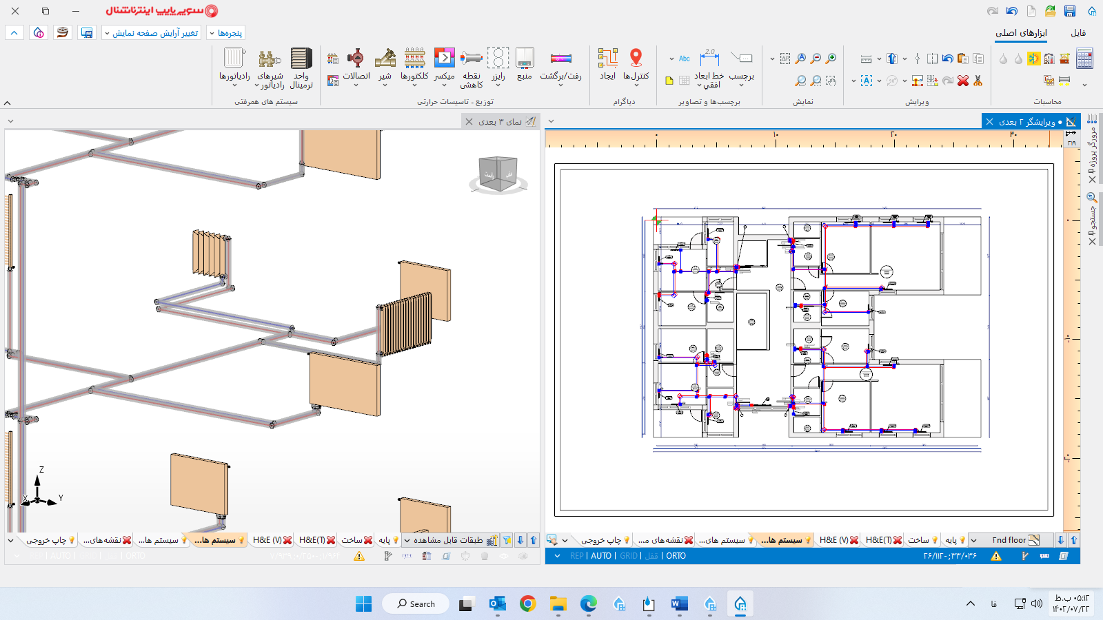
                سوپرپایپ کد۵ شما را قادر میسازد طراحی و محاسبات، نقشهکشی و برآورد اقلام را همزمان و با صرف کمترین وقت و انرژی انجام دهید. محیط نرمافزار، ارگونومیک و اکثر تواناییهای آن تا حد امکان خودکار است که کار طراحی و نقشه کشی را بسیار ساده میکند. زبان نرمافزار در محیط طراحی و نتایج فارسی است و هر عملکرد با آیکون تصویری و نام فارسی مناسب در نرمافزار قابل فراخوانی است که کار کردن با آن را بسیار ساده میکند.
ارائه ایرادات و هشدارهای گام به گام در فرآیند طراحی، طراح را به سادگی به طرح بهینه و درست راهنمایی میکند. سهولت امکان پیگیری ایرادات موجود در طرح، فرآیند طراحی را ساده و سریع میکند. در هنگام طراحی میتوان همواره نیم نگاهی به نتایج داشت. پس از پایان طراحی و کنترل نتایج، برآورد اقلام دقیق با دقت یک اتصال آماده است. ارائه نقشههای ۲ بعدی و ۳ بعدی و دفترچه محاسباتی پروژه در تمام سیستمها نیز به سادگی ممکن است.
- محاسبه کامل بار حرارتی گرمایشی ساختمان بر اساس استانداردهای
 
DIN EN 12831:2008-07
ÖNORM H 7500-1:2015
- محاسبه انتقال حرارت از دیواره ها و کف مطابق با روشهای
 
EN ISO 6946, EN ISO 13370
- محاسبات پلهای حرارتی بر مبنای
 
                                                                                                                                    EN ISO 14683
- محاسبات حرارتی برای سیستمهای تابشی گرمایشی و سرمایشی تابشی بر اساس:
 
EN 1264-2:2021
- برای ضخامت بتن بالا (کاربردهای صنعتی و غیره)
 
DIN 4725-200     
- بهینه سازی دمای آب ورودی در سیستم های تابشی با روش های محاسباتی منحصر بفرد
 
- سایززنی رادیاتورها
 - محاسبات حرارتی و سایز زنی رادیاتورها مطابق با EN 442-2
 
-  انتخاب و تنظیم شیرآلات و ... بر مبنای الزامات سازنده ها
 
- محاسبات هیدرولیکی بر اساس معادلات دارسی و کلبروک
 - سایزینگ لوله ها با معیارهای R_max و v_max
 - بالانس هیدرولیکی با کنترل مدارها با روش منحصر بفرد نرمافزار
 - محاسبه اتلاف حرارت در خطوط لوله - بر اساس روشهای متداول مهندسی
 - سایزینگ عایق لوله – مطابق با دستورالعمل سازنده و روشهای متداول مهندسی
 
- محاسبات نرخ دبی طراحی بر مبنای استانداردهای
 
- سایزینگ بهینه سیستم لوله کشی بعد از محاسبه دبی طراحی بر مبنای معیارهای حداکثر افت فشار و حداکثر سرعت مجاز و فشار در دسترس سیستم.
 - محاسبه اتلاف حرارت در خطوط لوله - بر اساس روشهای متداول مهندسی و سایزینگ عایق لوله – مطابق با دستورالعمل سازنده و روشهای متداول مهندسی
 - محاسبات شبکه برگشت آبگرم بر مبنای توصیه های DIN 1988
 - محاسبات سیستمهای لوپ (حلقهای) بر مبنای روش اختصاصی نرم افزار و توصیههای DIN 1988-300
 - محاسبات زمان خروج آب گرم (رسیدن آب گرم به مصرف کنندهها) بر اساس روش اختصاصی نرم افزار با در نظر گرفتن دستورالعملهای استاندارد مهندسی و ارزیابی نتایج بر اساس VDI 6003 یا DIN 1988-200
 
DIN 1988
DIN 1988-300:2012-05
PN-92/B-01706
EN 806-3:200
- محاسبات دبی طراحی فاضلاب بر اساس:
 
EN 12056-2, DIN 1986-100     
- سایز زنی لولههای فاضلاب بر اساس:
 
EN 12056-2, DIN 1986-100
- سایززنی و محاسبات سیستم ونت بر اساس:
 
EN 12056-2, DIN 1986-100
کامل و جامع بر مبنای استانداردهای روز بین المللی
                  
  مدلسازی اطلاعات ساختمان (BIM)
  
  
          
                      BIM یا Building Information Modeling (مدلسازی اطلاعات ساختمان) کلمهای کلیدی در ساخت و ساز امروز است که از فاز طراحی اولیه تا تعمیر و نگهداری یک ساختمان کاربرد دارد. سوپرپایپ کد5 در طراحی تاسیسات ساختمان، به سادهترین شکل ممکن شما را در مسیر استفاده از مفهوم BIM قرار میدهد.
با پشتیبانی از فرمت IFC در نرمافزار سوپرپایپ کد5، میتوان نقشههای سازه و معماری را از هر نرمافزار دیگر در حوزه BIM مانند Revit و ArchiCAD به آن وارد و اجزا را ترکیب یا حذف کرد. پس از طراحی تاسیسات در محیط ارگونومیک نرمافزار، خروجی لولهکشیها و سایر اجزا به همراه پارامترهای فنی و محاسباتی آنها را در فرمت IFC مستقیما از سوپرپایپ کد5 دریافت کرده و در نرمافزارهای دیگر مانند Revit و ArchiCAD یا نرمافزارهای سادهتر، مشاهده و کنترل کنید.
  
   
 
  آموزش و پشتیبانی سوپرپایپ 
سوپرپایپ کد را همراه با پشتیانی و
  آموزش سوپرپایپ در اختیار داشته باشد و از مزایای زیر بهره بگیرید:
- راهنمای جامع و به روز آنلاین در بستر وب و قابل دسترسی در هر ابزاری
 - ساعتها آموزش ویدیویی کامل و جامع
 - برگزاری دورههای آنلاین آموزشی
 - پاسخگویی به ایرادات و مشکلات از طریق فرم درون نرمافزار
 
                   
  امکانات کامل طراحی برای همه سیستمهای تاسیساتی
           
سـوپــــــرپایــــــپ کـــد 5 یــک تحـــــول در طراحی تاسیســـات و ابـــزاری ضروری برای مهندسان است.
                  نرم افزار سوپرپایپ کد 5 در دونسخه یک ساله و دائمی عرضه شده است.
برای خرید نسخه یک ساله به صفحه خرید نرم افزار مراجعه و برای نسخه دائمی با شرکت سوپرپایپ اینترناشنال تماس حاصل فرمائید.
